Как сделать шкаф купе своими руками?

Эти современные шкафы пользуются большой популярностью из-за компактного расположения в квартире и возможности вмещать в себя большое количество вещей. Они отлично организуют жилое пространство и спокойно вписывается в современный интерьер.
Где взять материалы для изготовления?
Такие шкафы, заводского производства, имеют весьма простую технологию изготовления.
Сегодня, в любом городе можно найти цеха, в которых есть распиловочные и древесно-обрабатывающие станки, где можно не только купить листы ЛДСП, но и распилить их согласно соответствующим размерам.
В таких мастерских - выполнят по индивидуальным чертежам фигурный распил по заданному радиусу и займутся кромкованием ПВХ, сделают присадки на петли.
Чаще всего, именно здесь приобретают материалы для корпусной мебели частные производители шкафов купе и кухонных наборов, которые продаются в магазинах.
Технология изготовления
В целом, технология изготовления шкафа купе - довольно проста. Она состоит из трех основных этапов. Сначала создают проект будущего шкафа, составляют схему раскроя и кромкования материала.
После этого, покупают материал и заказывают его распил по составленным чертежам. После этого, остается только собрать детали, и шкаф купе будет готов.
Как видите сделать шкаф купе своими руками сможет любой мужчина, имеющий опыт обращения с нехитрым электроинструментом и умеющий правильно производить расчет. Имейте в виду, что угловые шкафы купе рассчитываются несколько иначе.
К тому же, корпусная мебель, изготовленная самостоятельно, позволит существенно сэкономить семейный бюджет и время.
Если в магазине, стандартный корпусный шкаф при высоте в 2,3 метра, ширине 1,2 метра и глубине 0,4 метра обойдется покупателю в 31 тысячу рублей, то при самостоятельном изготовлении придется заплатить только за расходные материалы, что будет в два раза дешевле.
К тому же, всю работу Вы сможете сами сделать за две недели, а шкаф из магазина придется ждать не менее одного месяца.
В случае, если двери Вашего шкафа разболтаются, Вы всегда можете выполнить регулировку дверей шкафа купе по нашей инструкции.
Обычно, это является профилактическим мероприятием и касается как покупных, так и самодельных шкафов.
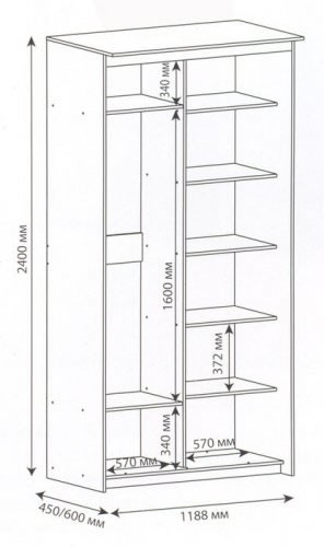
Как собрать? Схема.

Многим может показаться сложным процесс снятия размеров и разработки проекта. Однако при современных компьютерных программах это процесс можно максимально автоматизировать.
Сегодня, есть множество программ, позволяющих быстро и точно спроектировать корпусную мебель. Одна из таких несложных программ – Woody. Работать в ней можно очень легко, достаточно просмотреть обучающий ролик. Есть также программа "Базис-Мебельщик", имеющая русский интерфейс.
С помощью этой программы, после задания снятых с места установки шкафа параметров и введения их в программу, можно создать полную спецификацию изделия, в которой будет перечень и чертежи всех деталей шкафа купе. Таблица, также покажет, каким образом нужно будет кромковать детали.
Такая программа, также сразу покажет все особенности фурнитуры шкафа купе при его сборке. В чертежах, имеется разметка всех отверстий, а также указание всех размеров и расстояний.
Идеальным вариантом было бы - изготовление на современном станке с программным управлением, но такое мебельное оборудование вряд ли найдется у отечественного производителя мебели.
После того, как компьютер рассчитает все до последнего винтика, а на распилочном цехе, по чертежам, вырежут все необходимые детали и произведут обработку лицевой кромки, самостоятельно собрать шкаф купе с помощью шуруповерта не составит никакого труда.
