Делаем септик из бетонных колец

Лучший способ ее обустроить - септик из бетонных колец, который легко можно сделать самостоятельно.
Несмотря на сравнительную простоту всей конструкции, предстоит решить широкий ряд вопросов, связанных с выбором всего необходимого оборудования.
Когда дела обстоят с небольшим дачным домиком, о большом по объему и сложном сооружении нет необходимости думать.
Если приобретен домик по больше, значительно растет объем сточных вод, и маленькая яма будет очень быстро заполняться – необходим септик побольше.
Септик, выложенный кольцами из бетона, является золотой серединой.
В отличии от классических резервуаров из металла - он надежен и не покрывается коррозией.
Однако, у бетонных септиков имеется два недостатка:
- Достаточно большая площадь требуемого котлована;
- Стыки могут легко пропускать воду, поэтому приходится задумываться о дополнительной герметизации.
Устройство и схема
Сама по себе конструкция септика из бетонных колец представляет емкость, в которую будут попадать загрязненные стоки.
Проходя несколько очистных систем, вода вновь попадает в землю, при этом не засоряя участки.
Септики возводятся из 3-х основных частей:
- Первая – самая объемная, в которую напрямую попадают стоки. Анаэробные бактерии перерабатывают твердые отходы и последние выпадают в осадок – во второй отсек, в котором происходит их фильтрация;
- Вторая часть – емкость с гравием и керамзитом на дне. Проходя через них, стоки дополнительно очищаются от плотных примесей и осадков;
- Третья часть – позволяет быстро впитывать очищенную воду в земли. Ее обустраивают крайне редко, чтобы не усложнять конструкцию.
Существенно упростит работу схема септика из бетонных колец. Глядя на нее, обустройство будет идти намного быстрее.



Когда выбирается устройство септика из бетонных колец, в том числе его месторасположение, рекомендуется опираться на ряд факторов:
- Возможность подогнать грузовой автомобиль для откачивания сточных жидкостей;
- Глубина промерзания в данной местности;
- Грунтовые воды на участке и уровень их сезонных колебаний;
- Рельеф;
- Потребление воды в сутки.
Когда производятся расчеты, необходимо в первую очередь определить размеры бетонных колец для септика.
Рекомендуется брать стандартные модели, продаваемые на рынке. Их емкость составляет около 0.6-0.7 кубометров (1 м в диаметре и 0.8-1 м по высоте).
Для сооружения септика необходимо от 4 до 5 колец.
Изделия большего размера покупать не рекомендуется, потому что они тяжелые и сложные в монтаже.
Потребуется дорогостоящая аренда подъемного крана.
Производя расчеты, рядом должен быть чертеж септика из бетонных колец.
Ниже вы можете ознакомится с некоторыми готовыми вариантами:



Если на участке есть колодец с водой для питья, то септик должен находиться на максимально удаленном расстоянии от него, чтобы в случае, если он растечется - не загрязнить первый.
Требуется обустроить систему фильтрации. Стоки, поступающие внутрь, не настолько чисты, как хотелось бы. Сливать их непосредственно в землю не рекомендуется без предварительного пропускания через фильтрационные блоки.
Следует подумать о том, чтобы в случае поломки оперативно можно было провести ремонт септиков из бетонных колец.
К нему должен быть обеспечен открытый и беспрепятственный доступ.
Приступаем к строительству
Довольно простое строительство септика из бетонных колец сможет осуществить даже человек, не знакомый с основами строительства.
Предназначение и отличительные особенности септика уже описаны, остается ознакомиться с пошаговой инструкцией проводимых работ.
На первом этапе, возводя самодельный септик из бетонных колец, необходимо приступить к рытью котлована.
Можно это сделать вручную, но для экономии времени рекомендуется арендовать специализированную технику.
Самое важное – не ошибиться с диаметром, чтобы в последствии не пришлось осыпать стенки. К рассчитанному в чертежах размеру добавляют еще 2 десятка сантиметров.
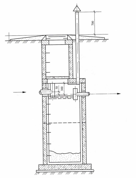
Рекомендуемая глубина септика из бетонных колец – около 4-5 метров. Для него потребуется 5 колец стандартного размера высотой от 0.8 до 1 м. Если будет организовываться фильтрационный колодец, дно бетонируют.
Кольца должны устанавливаться постепенно. Вначале монтируется первое кольцо, затем герметизируются все стыки, ставится следующее кольцо и т. д. Затем по наружной окружности засыпается и утрамбовывается гравий.
Чтобы изготовить правильный септик из бетонных колец, необходимо не только установить кольца в котлован желаемого объема, но и правильно проложить трубы.
Рекомендуемый уклон – 2 см/метр. Труба, которая тянется к септику от дома, прокладывается на глубине около 0.5 м.
Сверху они накрываются бетонной крышкой с люком. Можно заменить ее бетонной плитой.
На дачных участках со сравнительно небольшим объемом стоков в сутки, около 1-2 кубометров, рекомендуется обустраивать однокамерный септик из бетонных колец. Благодаря этому можно сэкономить денежные средства, время, в том числе силы.
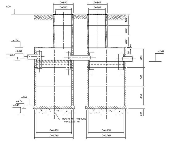
Если объемы стоков велики, необходим переливной септик из бетонных колец, состоящий из пары колодцев.
У первого из них бетонируется дно, так как он выполняет функцию своеобразного отстойника для крупных твердых фракций.
Второй колодец, рассасывающий, выполняет фильтрующую функцию. У него на дне организовывается щебенчатая гравийная подушка.
Обустраивая перелив между колодцами, необходимо позаботиться о наличии вентиляции, которая оборудуется непосредственно у септика через фановый стояк.
Располагать колодцы необходимо на расстоянии не менее 15-20 метров от питьевых колодцев.
Герметизация
Для того, чтобы вода не проникала внутрь и не вытекала наружу, необходима надежная герметизация септика из бетонных колец.
При ее отсутствии, возможно возникновение множества неприятностей, которые в последствии непросто устранить.
Чтобы организовать абсолютную герметизацию – устанавливают пластиковую вставку, которая имеет цилиндрическую форму и устанавливается внутрь.
Цилиндры зачастую обустраиваются ребрами жесткости для установки в почвах с высоким уровнем вод в грунте.
Изготавливаются цилиндры зачастую из полиэтилена. У их стенок толщина составляет 0.8-1 мм, стандартные диаметры – 0.9, 1.4 и 1.9 м., высота – до 1.45 метров.
В весенний период гидроизоляция септика из бетонных колец часто нарушается вследствие сезонного перемещения грунта.
Если неправильно все организовать – каждый сезон предстоит менять пластиковые кольца.
Где купить кольца для септика?
Общая стоимость септика из бетонных колец состоит из нескольких факторов:
- Обустройство котлована, основания для фильтрующего колодца;
- Стоимость колец и прочих комплектующих (люки, горловины и т. д.);
- Стоимость работ по монтажу колец и их гидроизоляции;
- Установка перелива между колодцами, обустройство фильтрационного поля.
Стоимость одного кольца варьируется в пределах 1.5-5 тысяч рублей.
Сегодня, цена бетонных колец для септика, изготовленных из марки бетона М200-400, и комплектующих к ним составит от 6 до 8 тысяч.
В зависимости о того, самостоятельно купить бетонные кольца для септика или непосредственно заказать у подрядчика, стоимость проведения работ командой специалистов составит 10-25 тысяч рублей.
