Баня из шлакоблока своими руками

В качестве основных аргументов они используют обычно то, что шлакоблок при нагревании выделяет некоторые токсичные элементы.
Если же подобные непроверенные аргументы Вас не останавливают, то можно засучить рукава и приниматься за стройку.
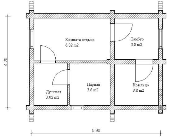
Проекты бань
Проекты бань из шлакоблока можно увидеть ниже:



Кроме того, их можно сделать самостоятельно.
Осуществив замер той территории, на которой планируется построить сооружение, можно уменьшить масштаб и перенести его план на бумагу.
Таким образом, будет гораздо легче рассчитать стоимость одного кубометра материала, необходимого для постройки, а так же примерно подсчитать, сколько кубометров понадобится для этого.
Баня из шлакоблока своими руками, как правило, не требует наличия больших материальных средств и вложений, ведь строение, по сути, получится достаточно небольшим.
Однако, все же рекомендуется приобретать шлакоблоки с запасом.
При рисовании собственного проекта бани стоит сразу учитывать не только высоту стен, но так же и высоту окон и дверных проемов.
Таким образом будет гораздо легче сориентироваться уже непосредственно на месте.
Приступаем к постройке
Построить баню из шлакоблока гораздо проще, чем, например, поставить сруб из цельных бревен.
Принято разделять процесс постройки на несколько этапов:
- Разметка участка;
- Расстановка арматуры, которая будет поддерживать всю конструкцию бани;
- Залив фундамента;
- Кладка стен;
- Постройка крыши;
- Изолирование;
- Утепление;
- Отделка.
Тем, кто задается вопросом, как сделать баню из шлакоблока, подобная инструкция придется весьма кстати.
Итак, после того, как участок был размечен, план составлен, а арматура с цементным раствором фундамента залиты, необходимо приниматься за строительство бани из шлакоблоков.
Следует помнить, что предварительно фундамент должен постоять примерно около двух-трех недель, чтобы раствор окончательно затвердел.
Строительство следует начинать только после этого.
Чтобы узнать, сколько надо шлакоблоков на баню, необходимо знать, в первую очередь, размеры стен.
Обычно на постройку обыкновенной небольшой бани с парилкой и комнатой отдыха уходит примерно около 70-80 кубометров шлакоблока. Ее можно сделать просторнее, если есть необходимость.
Баня из шлакоблока своими руками начинается с закладки опалубки, поскольку устанавливать этот материал прямо на почву не рекомендуется, так как он вберет в себя лишнюю влагу.
После поверх опалубки укладывается гидроизоляция, которая так же предохраняет шлакоблок от впитывания лишней воды.
Уже после стены строятся непосредственно укладкой материала друг на друга. Иногда при постройке используют метод армирования сеткой, чтобы конструкция бани была прочнее.
Постройка бани из шлакоблока, то есть основной процесс, завершается установкой крыши.
Предварительно на стену следует выложить и закрепить деревянные брусья. Стропила кладутся именно на них, после чего можно накрывать ее любым материалом.
Крыша может быть двух видов:
- Двускатная;
- Односкатная.
Последний тип крыши построить гораздо дешевле, однако в этом случае существует необходимость в зимнее время постоянно счищать с нее скопившийся снег.
В первом же случае благодаря двускатному покрытию может образоваться дополнительное помещение. Именно благодаря данному преимуществу чаще всего и выбирается подобный тип крыши.
Строить баню из шлакоблока не так уж и сложно, необходимо только поэтапно знать свои следующие шаги. Итак, далее следует проведение внутренней изоляции.
Она необходима для предотвращения впитывания в шлакоблок влаги, а так же для того, чтобы не появлялся конденсат.
Обычно изоляция делается в несколько слоев, для полного предотвращения впитывания влаги. Закрепляться она может обыкновенной вагонкой.
Осуществляем утепление и отделку
Утепление бани из шлакоблока производиться внутри и снаружи. Первый вид отделки осуществляется так же вагонкой.
Данный метод относительно дешев и безопасен.
Но следует помнить, что в случае, если поверхность не была обработана, то ее необходимо будет покрыть особым лаком, который не будет токсичен при нагревании.
К тому же, многие рекомендуют покрывать доску и противогрибковым средством, который поможет избежать разрушения.
Пол можно изначально зацементировать, после - утеплить и, сделав гидроизоляцию, положить на него керамическую плитку.
Если есть желание, можно сделать настил деревянным.
В этом случае пол должен быть чуть приподнят над фундаментом, чтобы стекающая в канализацию использованная вода не могла застаиваться, разрушая тем самым структуру дерева.
Однако следует помнить, что все же данный настил не столь долговечен, как, например, пол, выложенный плиткой.
При использовании во внутренней отделки досок, лучше всего использовать хвойные породы.
Они не только позволят нейтрализовать возможные негативные последствия от использования шлакоблоков, но и при нагревании будут выделять небольшое количество смолы, что благотворно скажется на здоровье любого человека.
Баня из шлакоблока, внутренняя отделка которой может производиться самостоятельно, должна включать в себя так же и такую процедуру, как утепление.
Для всех тех, кому интересен вопрос о том, как утеплить баню из шлакоблока, необходимо знать, что подобная процедура осуществляется так же при помощи любых материалов.
Итак, что же чаще всего подходит для утепления стен:
- Фольга;
- Мин. вата;
- Пенопласт;
- Базовые утеплители.
Следует помнить, что эффективны обычно данные типы утеплители только когда использовуются вместе.
Отделка бань из шлакоблока снаружи представляет собой процесс обкладывания ее обычным облицовочным кирпичом.
Кроме всего прочего, ее можно так же обшить вагонкой, оштукатурить, либо обшить сайдингом. Выбор достаточно велик и потому каждый сможет выбрать тот материал, который приходится ему по душе.
При внешней отделке метод армирования уже не настолько важен. Именно поэтому можно его не использовать совсем.
Однако если есть желание повысить прочность стен бани, то снаружи можно так же использовать сетку, как это делали и внутри.
